• Povećaj tekst
  • Smanji tekst
  • Negativni kontrast
  • Sivi tonovi
  • Čitljiv font
  • Reset

24/06/2014

REZULTATI ODABIRA IDEJNIH ARHITEKTONSKIH RJEŠENJA

Na javni poziv odazvalo se je ukupno 28 autora/autorskih timova.
 
Zahvaljujemo se Anji Kostašnjak, Ani Vučković, Hrvoju Boti, Srđanu Lukšiću, Meliti Matasić-Paić, Božici Česi, Damiru Šuperu, Darku Kahleu, Dinki Benačić, Andreji Dodig, Tamari Brixy, Darku Kovaču, Dragani Marinić, Isabeli Meničanin, Kristini Vidić, Lucijanu Lijeviću, Luki Korlaetu, Maji Milat, Marijani Butković, Marini Ninić, Nevenu Kovačiću, Sandri Barić, Danijeli Škarica, Ivani Žalac, Tatjani Halapija, Zdenki Šarolić, Mati Mrkoviću, Tomislavu Paveliću, Robertu Loheru i Nini Viragu.
 
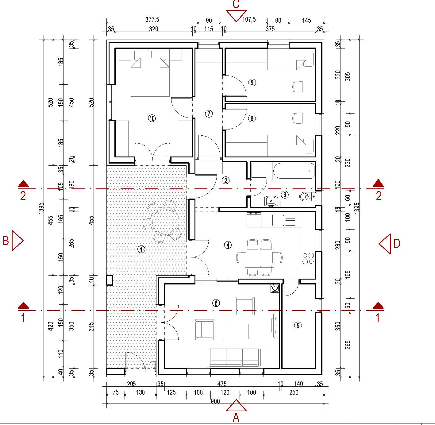
Radna grupa za odabir najboljih idejnih rješenja  u sastavu: dr.sc. Borka Bobovec, dipl.ing.arh., Zoran Boševski, dipl.ing.arh., Željka Jurković, dipl.ing.arh., prof.dr.sc. Željko Koški, dipl.ing.arh. i Ivan Ljubić, dipl.ing.arh., održala je sjednicu 24. lipnja 2014.god. te je za daljnju razradu u formi tipskog rješenja  odabrala idejna rješenja slijedećih ovlaštenih arhitekata: 
 
 (klikni na sliku za uvećanje)
 
za tip T1 UP za kuću B kategorije:
 
                    - Kristina Vidić, ovl.arh. 3830.
        
 
 
 
za tip T1 UP za gotovo nul-energetsku kuću:
 
                   -Sandra Barić, ovl.arh. 2578.
 
 
 
 
 
za tip T2 UP za kuću B kategorije i za nul-energetsku kuću:
 
                    -Dragana Marinić, ovl.arh. broj 3468.
 
 
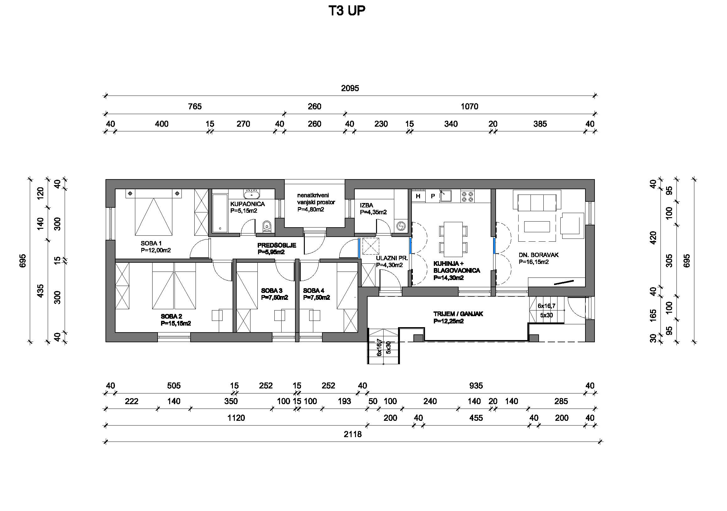
za tip T3 UP za kuću B kategorije i za nul-energetsku kuću:
 
                    - Dragana Marinić, ovl. arh. broj 3468,
 
 
                    - Marina Kolač, ovl.arh. broj 3792.
 
    
 
 
 
Za tip T1 ŠP, T2 ŠP, T3 ŠP za kuću B kategorije i za nul-energetsku kuću:
 
                    -  projektni  tim, Vedran Jukić ovl.arh. broj 3508, Siniša Bodrožić,dipl.ing.arh., Neven Kovačić, dipl dizajner,Vedran Družina,   dipl.ing.arh.,   Mađa Modaš  mag.ing.arch., i Sabina Pleše mag.ing.arch.
 
 
 
 
 
Čestitamo arhitektima čija su idejna rješenja odabrana!
Još jednom želimo zahvaliti svim našim članovima koji su sudjelovali u ovoj plemenitoj akciji organiziranoj od strane Hrvatske komore arhitekata i Ministarstva graditeljstva i prostornoga uređenja, i donirali idejna rješenja, a sve u svrhu pomoći područjima stradalim od poplava.
Napominjemo da ćemo i sve ostale pristigle radove, ukoliko se u daljnjoj fazi ukaže potreba za dodatnom suradnjom, imati u vidu, te molimo njihove autore da budu na raspolaganju za daljnju suradnju.
U narednom periodu planira se organizacija izložbe svih pristiglih radova, o čemu ćemo Vas naknadno obavijestiti.
 
Hrvatska komora arhitekata